
UPDATED:
Key Details
Property Type Condo
Sub Type Condominium
Listing Status Active
Purchase Type For Sale
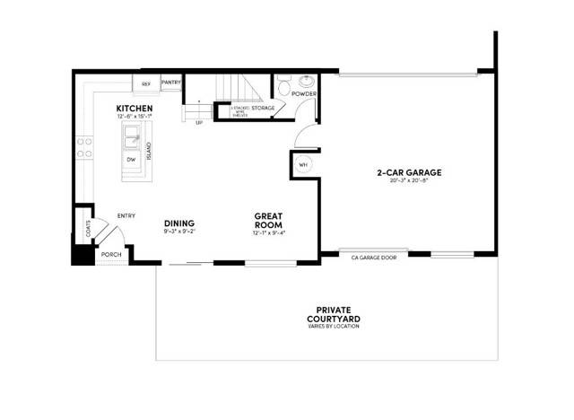
Square Footage 1,734 sqft
Price per Sqft $379
MLS Listing ID CROC25256133
Bedrooms 3
Full Baths 2
HOA Fees $400/mo
HOA Y/N Yes
Year Built 2025
Property Sub-Type Condominium
Source Datashare California Regional
Property Description
Location
State CA
County San Bernardino
Interior
Cooling Central Air, Whole House Fan, Other, ENERGY STAR Qualified Equipment
Fireplaces Type None
Fireplace No
Laundry Other, Inside
Exterior
Garage Spaces 2.0
Amenities Available Clubhouse, Playground, Pool, Spa/Hot Tub, Other, Barbecue, BBQ Area, Dog Park, Pet Restrictions, Picnic Area, Recreation Facilities
View None
Private Pool false
Building
Lot Description Street Light(s), Storm Drain
Story 2
Water Public
Schools
School District Chaffey Joint Union High
Others
HOA Fee Include Management Fee

Get More Information

Altie Schmitt
Partner at Village Associates | License ID: 00924672
Partner at Village Associates License ID: 00924672




